ÁGUA PURO SAL | APARTAMENTO 031 | TIPOLOGIA T2 | CATEGORIA AO
Água Hotels Puro Sal é um empreendimento turístico de
4 estrelas localizado na prestigiada
Avenida dos Hotéis, em Santa Maria, na Ilha do Sal. Com uma arquitetura que combina a tradição cabo-verdiana com um design moderno e elegante, o projeto oferece
146 apartamentos das tipologias
T1 e T2, incluindo exclusivas penthouses.
Estrategicamente posicionado a apenas
290 metros da Praia de Santa Maria, o complexo dispõe de infraestruturas completas, incluindo
piscina,
ginásio,
restaurante,
bar e
minimercado. Este empreendimento destaca-se como um investimento seguro, oferecendo unidades "chave na mão", totalmente mobiladas e equipadas.
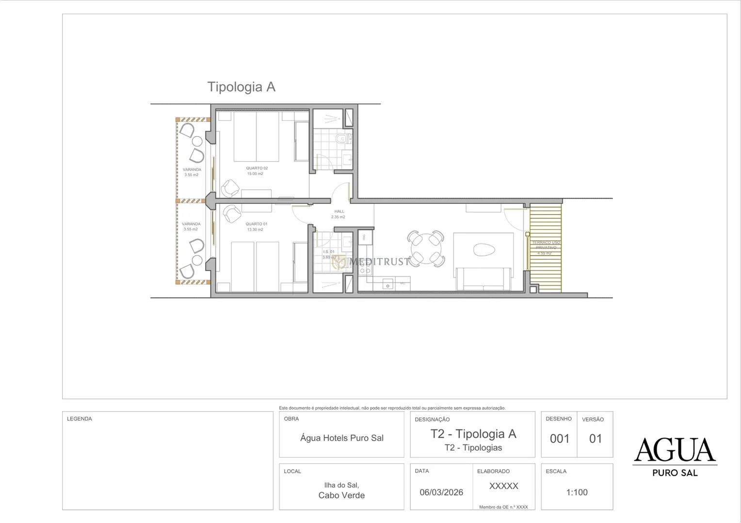
TIPOLOGIA T2 | CATEGORIAS A, B, B.1, C e DOs apartamentos T2 apresentam áreas brutas entre
73,55 m² e 95,10 m² e varandas/terraços que podem chegar aos
64,70 m². Estão divididos em 4 categorias principais:
- Tipologia A: A configuração mais comum, com 4 unidades localizadas no Piso 0 , repetindo-se nos pisos superiores.
- Tipologia B (e B.1): Unidades de gaveto ou extremidade. Existem 2 unidades no Piso 0 e variantes B.1 nos pisos 1, 2 e 3.
- Tipologia C: Configuração específica com uma unidade identificada no Piso 1 e Piso 2.
- Tipologia D (Penthouses): As unidades mais exclusivas, localizadas no Piso 3. Existem 2 unidades desta tipologia no último andar.
DESTAQUES DO INVESTIMENTO - Rentabilidade Garantida: 5% anual sobre o valor de aquisição por um período de 10 anos.
- Isenção de Custos: 10 anos sem pagamento de despesas de condomínio.
- Benefício de Uso: Direito a utilizar o apartamento durante 4 semanas por ano.
- Desconto de Lançamento: 10% de desconto para contratos assinados e sinalizados até 31 de Março.